THE ULTIMATE ALWAYS-OPEN HOUSE
BRING YOUR HOME TO LIFE
Blow prospective buyers away with 3D Showcase - an immersive online 3D experience that gives buyers a true sense of the feeling of your property before they ever see it in person.
We put Matterport’s industry-leading technology to work for your listing. Weed out less interested buyers, and attract more qualified open house attendees.
YOUR PROPERTY IN IMMERSIVE 3D, READY ON DAY 1
1. We scan your property with the Matterport Pro Camera.
2. Within hours, your virtual Matterport Space is ready to experience.
3. Anyone can explore with ease, right from their browser.
Inside View
Navigate your property like a videogame
Dollhouse View
Shows how the entire property fits together.
Floor Plan View
Understand layout in a glance.
Matterport's 3D Showcase is an online experience for homebuyers to move through a property and see it from any angle and on any device. Our distinct dollhouse view gives homebuyers a completely unique sense of the property and it makes them...
...95% MORE LIKELY TO CALL
300% MORE ENGAGEMENT
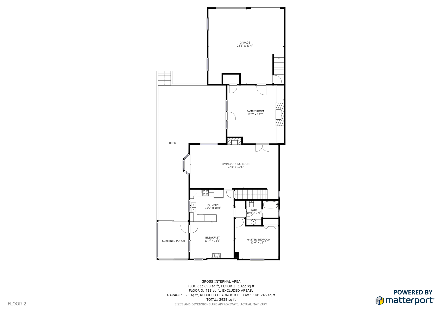
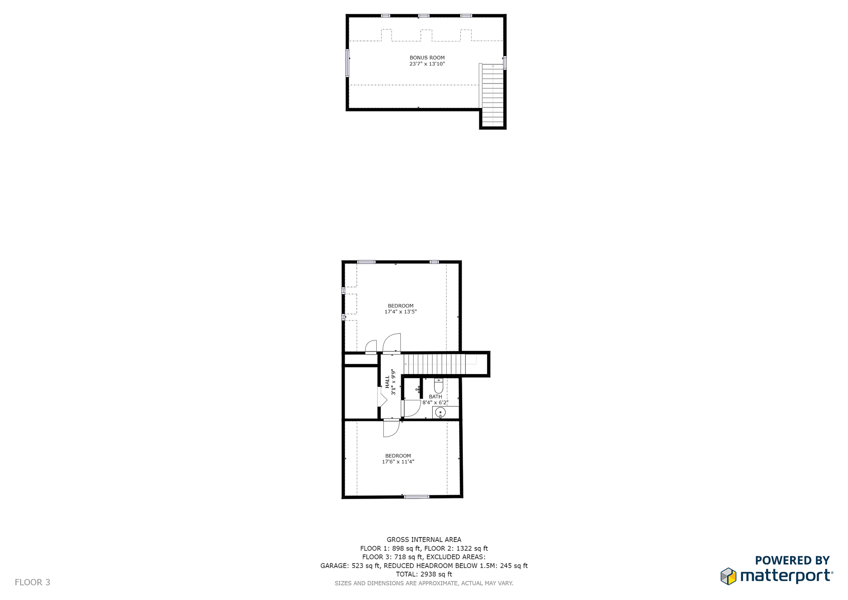
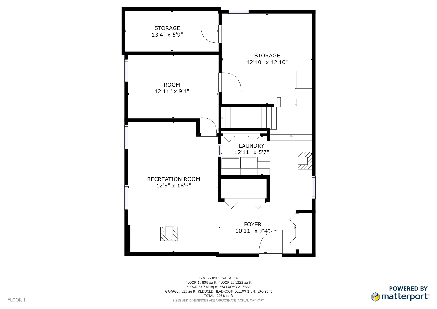
SCHEMATIC FLOOR PLANS
We can create black and white floorplans from your Matterport Space. Each individual floor can be delivered as a separate PNG and SVG file. All floors are also delivered as a one-page PDF and the default size for the PNG files is 2730 width x 2048 height in pixels.
Measurements provided on floor plans (linear measurements between opposing walls) are generally accurate to within 0 to 2% of reality, but we cannot guarantee this tolerance for all measurements and all scanned environments.
Measurement standards can vary widely depending on the property type, intended use, and your locale, so please check the local measuring standards in your region and industry to make sure that Matterport floor plans are compliant.

Floorplan 1
Floorplan 2
Floorplan 3